Background page title

Bureau Strassen Strassen

Full picture
Sale icon Loué
Price icon 4.500 €
Charges icon 300 €
Caution icon 13.500 €
Area icon 185 m2
Parking icon 4
IMG_8449.JPG

Carte

Google map icon
Route d'Arlon, Strassen, Luxembourg

Description

Strassen, Route d'Arlon : belle visibilité.
Accès autoroutes et transports en commun à proximité.
Connexion directe à l'Autoroute A6 sortie Bridel très fluide.

Disponible de suite.

Bureaux à louer non-meublés :
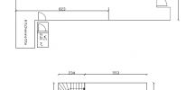
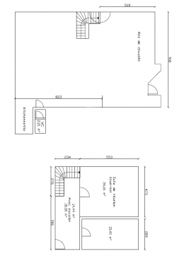
Total de 185 m² :
=> Au RDC : 125 m² de bureaux
=> Au -1 : 26 m² de salle de réunion au rez de jardin/
=> 34 m² d'archives + salle IT.

Loué avec 4 parking : 3 Parkings extérieurs + 1 emplacement intérieur.

Surfaces prêtes à l'emploi.
Boîtiers de sol et câblage informatique + rack déjà présent.
Le local est climatisé et est cablé.
Egalement il est équipé de caméras et de capteurs pour l'alarme pré- installée.
Kitchenette équipée.
Les charges incluent : eau, chauffage, entretien des communs, taxe des ordures ménagères.

Conditions de location : contrat de location de bureau à usage professionnel de 3 ans renouvelable
Garantie : versement de 3 mois de loyer à la signature du bail.

Proches de nombreux commerces.
Arrêt de bus à proximité desservant le centre-ville et Luxembourg-Gare.

Caractéristiques :
• Cadre: Acier
• Structure: Béton
• Façade: Béton
• Entrées: Privée; Niveau / rampe d'accès
• Type de sol: Pierre / marbre
• Salles IT et d'archive,
• Fibre et câblage IT et telecom,
• Climatisation,
• Double vitrage
• Chauffage central gaz
• Alarme et détection incendie
• Enseigne extérieure

Pas de TVA sur le loyer.

Détails

  • Parking 3
  • Garage 1

Contact

Photo Lauriane Delmer

Lauriane Delmer

Agent immobilier

Données utilisées conformément à notre politique de confidentialité
Message envoyé Ok icon
Oups! Erreur! Merci d'envoyer un e-mail à info@ldhome.lu