Background page title

Office Luxembourg Kirchberg

Full picture
Sale icon For rent Immediately
Area icon 563 m2
Façade.png

Map

Google map icon
15 rue Edward Steichen L-2540 Luxembourg

Description

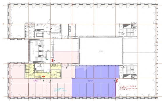
Kirchberg – Flexible Offices for Rent – ​​563 m²

Located in the heart of the Kirchberg business district, these offices offer a total area of ​​563 m², divided into several partitioned spaces.

The layout is fully modular, allowing for complete or partial opening up of the space according to the tenant's needs.

Existing Amenities:
• Reception area
• Computer room
• Meeting room (12 seats)
• Equipped kitchen
• Men's and women's restrooms
• Furniture included or not (tenant's choice)
• Active ceiling (heating/cooling)

Financial Conditions:
• Rent: €44.15/m²
• Service charges: €4.60/m²
• VAT not applicable
- Deposit: 6 months bank guarantee
- Agency fees shared between landlord and tenant (50/50) based on one month's rent excluding charges.

Up to 7 parking spaces are available for rent at €358/space/month.
A 36 m² cellar is available for rent at €780/month.

Flexible lease term

Possibility of renting a smaller space, approximately 351 m² (exact size to be confirmed)

Accessibility & Environment:
• Tram and bus stops in the immediate vicinity
• Close to European institutions, banks, law firms, and financial companies
• 5 minutes from the Kirchberg Shopping Centre (Auchan), restaurants, services, and gyms
• Quick access to the A1 motorway and Findel Airport
• Public parking in the area

For further information or to schedule a viewing, please contact us by email at info@ldhome.lu.

Since 2011, LD Home has been supporting tenants and landlords with rigor, transparency, and care. Trust our expertise for a smooth and stress-free move.

LD Home Agency – "GARDIENS DE VOTRE PATRIMOINE IMMOBILIER »

Details

  • Floor 1
  • Elevator Yes
  • Equiped kitchen Yes
  • Year of construction -1
  • Energetic class G
  • Thermic class D

Contact

Will be used in accordance with our Privacy Policy
Message sent Ok icon
Oups! Error! Please send an e-mail to info@ldhome.lu