Background page title

Apartment Luxembourg Kirchberg

Full picture
Sale icon Rented
Price icon 2.600 €
Charges icon 200 €
Deposit icon
5.800 €
Area icon 90 m2
Bedroom icon 2
Bathroom icon 1
Parking icon 1
20201027_144135.jpg

Map

Google map icon
Avenue John F. Kennedy, Luxembourg

Description

* FLATSHARING Ok *

Living at INFINITY means being close to everything you need: transport, offices, schools, nurseries, hospital, banks, shops and entertainment. Your mobility is favored by the presence of the future tram stop, a minute's walk away, as well as by the immediate access to the motorway.

In addition, for the first time in Luxembourg, you will have the privilege of living right in front of the Philharmonie and the Mudam and being able to reach the Grand Théâtre and the city center in three minutes by bike.

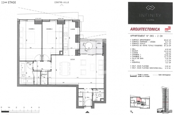
We offer you this exceptional 2 bedroom apartment, unfurnished.

You will live in a modern apartment located on the 11th floor with a feeling of height.
Thought out with great care and quality materials during its design, it will offer you a very beautiful high-end fully equipped kitchen, open to a pleasant bright living room with a privileged view of the capital.

At the entrance, you will have a hall with a custom-made cupboard;
A separate WC with hand basin;
A bright living room with the loggia;
2 bedrooms ;
The bathroom with shower AND bathtub.

The property also comes with a private cellar.

Throughout the apartment, you will enjoy underfloor heating, numerous outlets, as well as the latest home automation technologies.
High-end services: Triple-glazing, double-flow ventilation, electric slatted blinds, videophone, AAA energy certification.

Available December 2022.

A NEW UNIQUE PLACE OF LIFE
“The composition of the INFINITY project is based on the union of east and west. Two towers rise together as one while their facades unfold into a green roof, bringing unity to this village of glass cubes. Like a Möbius ribbon linking the different elements, the roofs cross in a momentum, unified in the center of the composition. "
A UNIT IDEA
"The residential tower is a slender vertical strip. It emerges from a folded green roof. Its glass-shaded facade follows the movement of the roof: it rolls up and curves straight up to the sky. The roof extends over a platform and separates into two areas that intersect without unifying, creating a double cut resembling a rolling hillside. The tower follows this duality by splitting into two entities which bend independently. The horizontality arising from the roof and the verticality of the residential tower form a unit. "
FUNCTION AND ENVIRONMENT
"The proportions of the tower have been designed to maximize the number of spaces benefiting from direct natural light. The vast majority of units face south, the others east and west. The tower separates into two entities, the middle units benefit from a second exposure to the sun. ”
THE FACADE
"The skin of the building is clad in transparent and opaque vertical components. They create a nuanced organic pattern while serving sustainability goals. Loggias transform into winter gardens for use all year round. Closed, they merge into the main facade. The surfaces of the two facades separate at the top to emphasize the duality of the tower. "
ARRIVAL
"The double-height glass walls reveal a lobby whose walls follow the exterior volumetric language with angular surfaces. The lobby marks the entrance and announces the arrival in a residence of international standing offering a feeling of new to Luxembourg."
The INFINITY project is carried out in partnership with the Luxembourg architectural firm M3, recognized in Luxembourg for nearly twenty years for its talent and expertise in the design of urban projects and interior design.

INFINITY marks the meeting of several universes where horizons intersect to create a richer life. The LIVE.SHOP.WORK triptych. INFINITY comes to life around 20,000 m² of housing, a 6,500 m² shopping center with 22 themed stores, restaurants and cafes, as well as a 6,800 m² office building, all ideally located and very close to public transport . A stone's throw from the offices, the Philharmonie and the Mudam, the residential INFINITY LIVING tower characterizes the privilege of an insider address imbued with dynamism and sophistication.

Details

  • Equiped kitchen Yes
  • Garage 1
  • Thermic class A
  • Cellar Yes
  • Energetic class A

Contact

Will be used in accordance with our Privacy Policy
Message sent Ok icon
Oups! Error! Please send an e-mail to info@ldhome.lu